- Bích neo tàu biển
- Giá: Liên hệ: +84 905468055
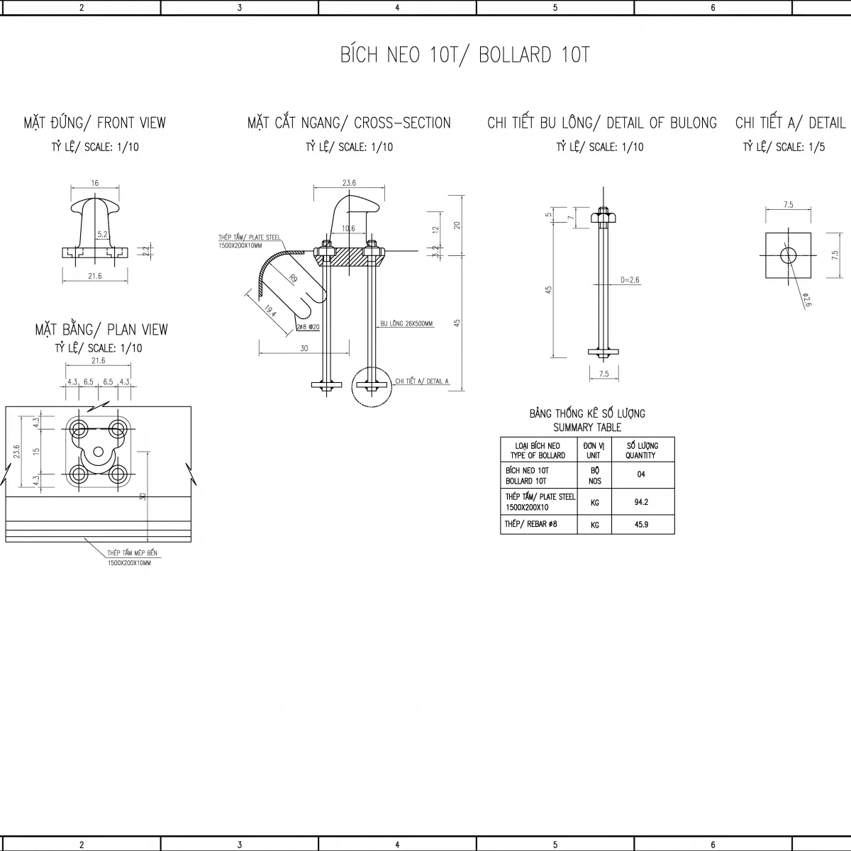
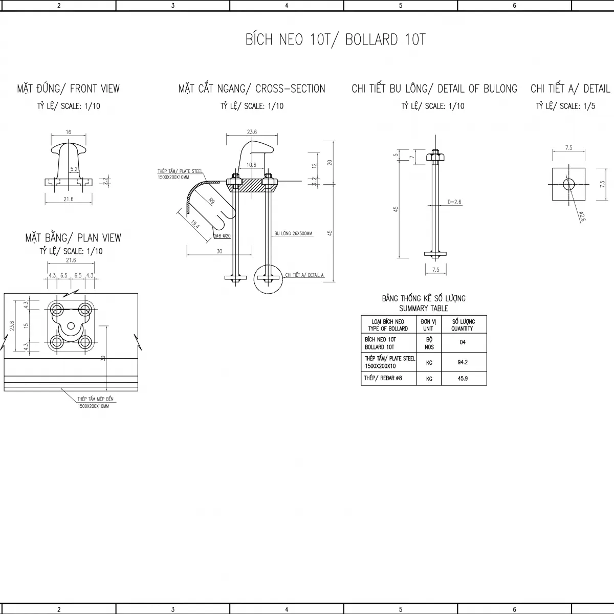
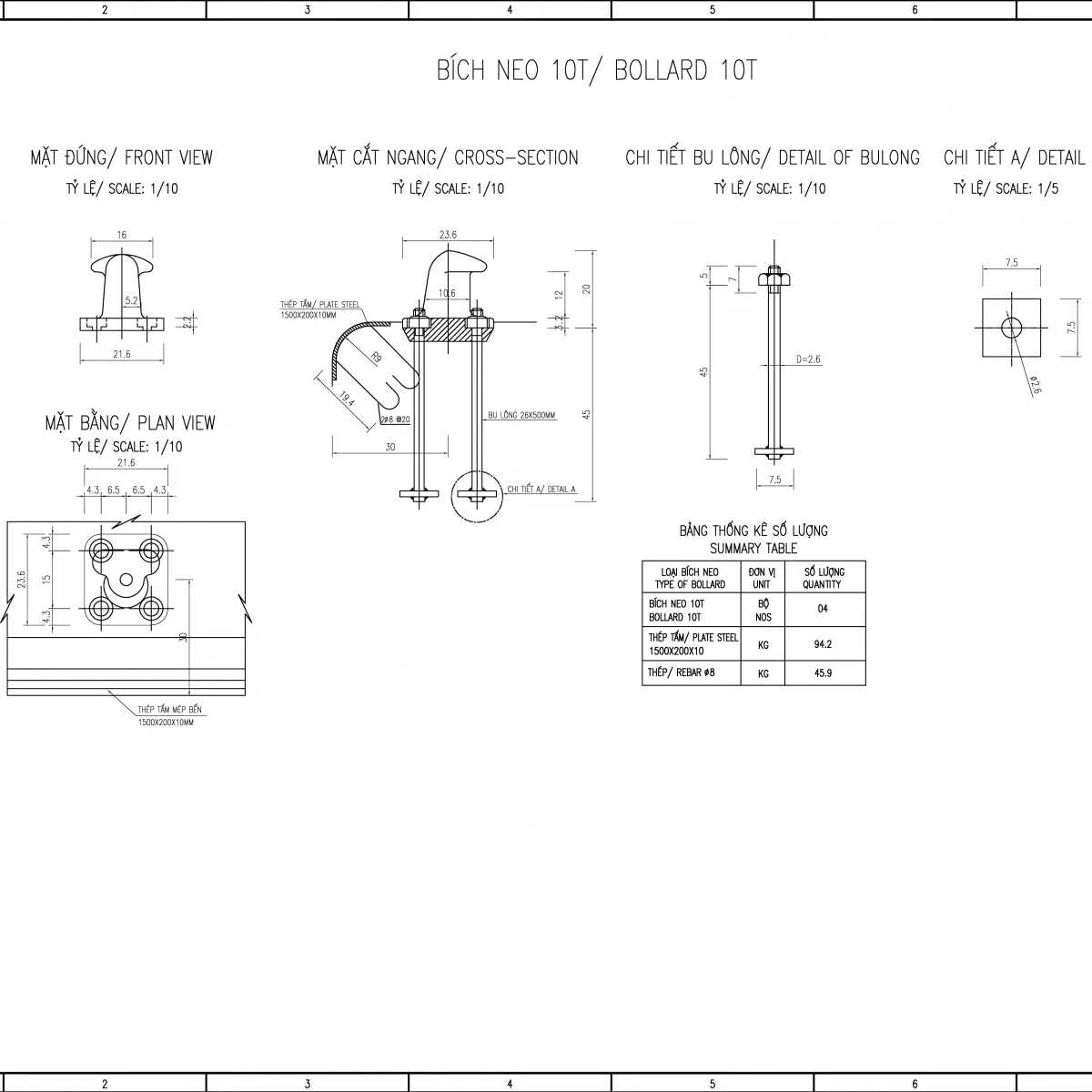
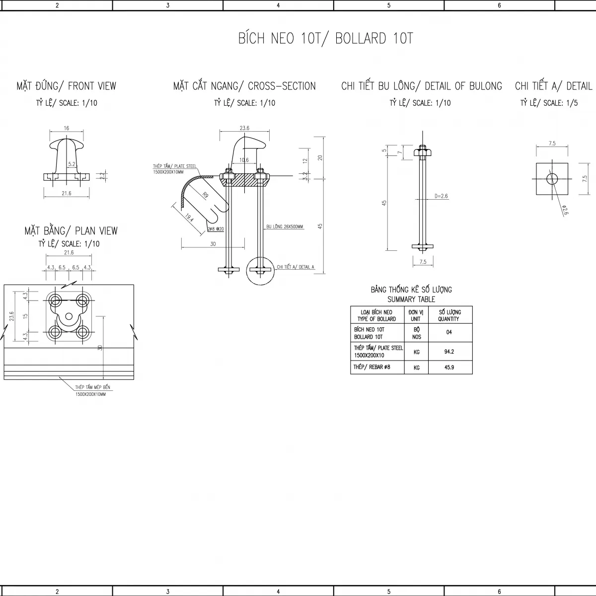
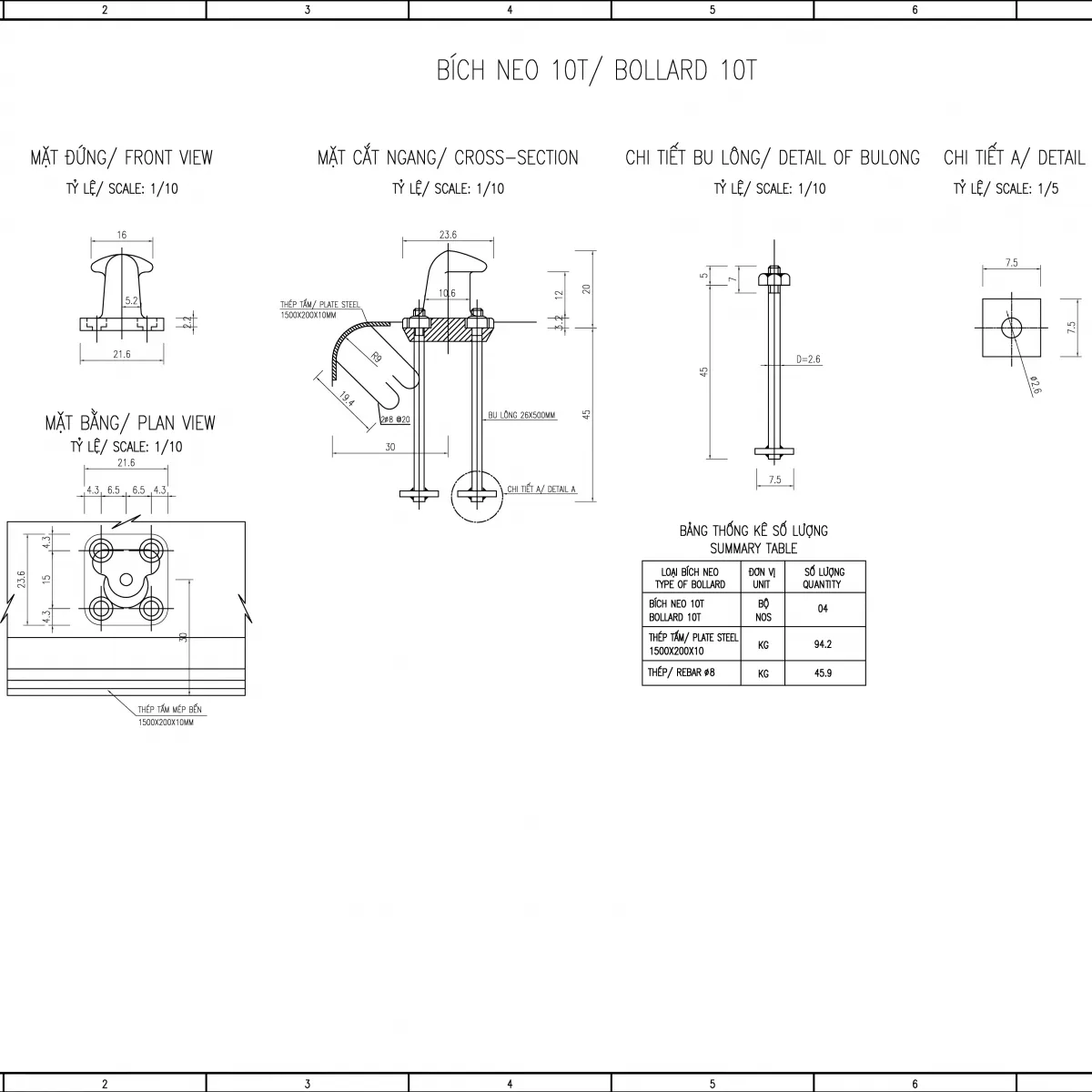
Tên sản phẩm: Bích Neo Tàu Biển 10T
Kích thước: 20mm x 21.6mm x 23.6mm
Vật liệu: Gang
Bu lông:
+ Đường kính: 26mm
+ Chiều dài: 500mm
Lực kéo tối đa: 10 tấn
Thiết kế: Bích neo tàu trụ đơn.
Hệ số an toàn: >= 2
Bề mặt: Nhẵn bóng, không bị rỗ hoặc khuyết tật. Được sơn 2 lớp bằng Expoxy - chống rỉ màu đen
Sản xuất: Công Ty TNHH MTV Lương Sơn Bạc
-
Gọi ngay: +84 905468055 Để có được giá tốt nhất
- Thông tin sản phẩm
- Bình luận
Bích Neo Tàu Biển: Thông Số Kỹ Thuật Và Ứng Dụng
Bích Neo Tàu Biển là một sản phẩm không thể thiếu trong ngành hàng hải, đặc biệt trong việc neo đậu tàu thuyền. Bích neo tàu biển được dùng ở các bến cảng, cảng cầu,...dùng để neo thuyền vào bến một cách an toàn. Với các yêu cầu khắt khe về độ bền và khả năng chịu lực, bích neo tàu biển đảm bảo an toàn và hiệu quả trong mọi điều kiện.
>>>Có thể quan tâm: Ghế Gang Đúc: Mang Lại Cảm Giác Thoải Mái Và Sự Sang Trọng
1. Các loại Bích neo tàu biển phổ biến
1.1. Thông Số Kỹ Thuật Của Bích Neo Tàu Biển 10T
Tên sản phẩm: Bích Neo Tàu Biển 10T
- Kích thước:
+ Chiều cao: 20mm
+ Chiều rộng: 21.6mm
+ Chiều dài: 23.6mm
- Vật liệu: Gang
- Bu lông:
+ Đường kính: 26mm
+ Chiều dài: 500mm
- Trọng lượng: 20kg
- Lực kéo tối đa: 10 tấn
- Thiết kế: Bích neo tàu trụ đơn.
- Thành phần hóa học và đặc tính cơ học của vật liệu chế tạo theo TCV2361:1989 Gang đúc
- Hệ số an toàn: >= 2
- Bề mặt: Nhẵn bóng, không bị rỗ hoặc khuyết tật. Được sơn 2 lớp bằng Expoxy - chống rỉ màu đen
- Sản xuất: Công Ty TNHH MTV Lương Sơn Bạc
Những thông số này có thể tùy chỉnh dựa theo yêu cầu cụ thể của khách hàng

1.2. Phân Tích Chi Tiết Bích Neo Chữ T 15T - Tiêu Chuẩn Phổ Biến
Để hiểu rõ cấu tạo của một bích neo, chúng ta sẽ cùng phân tích bản vẽ kỹ thuật của loại Bích Neo Chữ T 15T (T-Bollard), một trong những loại được sử dụng rộng rãi nhất hiện nay.
Đặc Điểm & Thông Số Kỹ Thuật Bích Neo 15T
Bích neo chữ T 15T được thiết kế với phần thân trụ và một thanh ngang trên đỉnh, tạo thành hình chữ "T". Thiết kế này giúp dây neo được giữ chắc chắn, dễ dàng thao tác và phân bổ lực kéo hiệu quả.
Dựa trên bản vẽ, các thông số kỹ thuật chính của bích neo 15T bao gồm:
Ký hiệu |
Thông số |
Kích thước (mm) |
Mô tả |
---|---|---|---|
15T |
Tải trọng |
15 tấn |
Khả năng chịu lực kéo tối đa (Safe Working Load). |
A |
Chiều rộng đế |
350 |
Khoảng cách giữa tâm các lỗ bulong theo chiều rộng. |
B |
Chiều dài đế |
400 |
Khoảng cách giữa tâm các lỗ bulong theo chiều dài. |
C |
Chiều rộng tổng thể |
330 |
Chiều rộng của thanh ngang chữ T. |
D |
Đường kính thân |
170 |
Đường kính của trụ bích neo. |
E |
Bán kính cong |
R80 |
Bán kính bo tròn tại các góc của thanh ngang. |
F |
Chiều rộng đầu trụ |
140 |
Chiều rộng phần đỉnh của thanh ngang. |
G |
Chiều cao vai |
50 |
Chiều cao từ đế đến phần vai bích neo. |
H |
Chiều cao tổng thể |
280 |
Chiều cao từ mặt đế đến điểm cao nhất của bích neo. |
- Vật liệu chế tạo: Gang đúc theo TCVN 2361:1989, đảm bảo độ cứng, độ bền và khả năng chịu mài mòn cao.
- Bề mặt: Được gia công nhẵn bóng, không có khuyết tật. Sơn 2 lớp Expoxy màu đen chuyên dụng cho môi trường biển, giúp chống rỉ sét và ăn mòn hóa học.
Thông Số Kỹ Thuật Bulong Neo (Bulong Inox 304)
Bulong là thành phần quan trọng để cố định bích neo vào nền bê tông của cầu cảng. Bulong phải có khả năng chịu lực tương đương và chống ăn mòn tốt.
Ký hiệu |
Thông số |
Kích thước (mm) |
Số Lượng |
---|---|---|---|
L |
Chiều dài |
450 |
Chiều dài tổng thể của bulong. |
d |
Đường kính |
M24 |
Đường kính ren của bulong là 24mm. |
- |
Số lượng |
06 |
Cần 06 bộ bulong để lắp đặt hoàn chỉnh một bích neo 15T. |
- Vật liệu: Inox 304, nổi bật với khả năng chống ăn mòn và rỉ sét vượt trội, cực kỳ phù hợp cho các công trình ven biển và ngoài khơi.
Ngoài ra, các dòng bích neo phổ biến còn có khả năng chịu tải từ 15 tấn, 30 tấn, 50 tấn đến 100 tấn, phù hợp với nhiều quy mô công trình khác nhau – từ cầu cảng nhỏ, bến phà, đến cả hệ thống neo tàu trọng tải lớn trong cảng biển quốc tế. Việc lựa chọn đúng tải trọng bích neo không chỉ đảm bảo an toàn vận hành, mà còn tối ưu hiệu quả kinh tế và độ bền công trình theo thời gian.
2. Nguyên Lý Hoạt Động Của Bích Neo Tàu Biển
Nhiều người có thể hình dung đơn giản là chỉ cần quấn dây quanh bích neo. Tuy nhiên, nguyên lý hoạt động của nó là một chuỗi các bước phối hợp chặt chẽ để đảm bảo an toàn tuyệt đối.
Nguyên lý hoạt động thực tế của bích neo tàu biển
Nguyên tắc hoạt động cốt lõi của bích neo tàu biển không chỉ là một điểm tựa cơ học, mà dựa trên một nguyên lý vật lý hiệu quả gọi là hiệu ứng Capstan. Nguyên lý này mô tả sự khuếch đại lực thông qua ma sát.
Khi một sợi dây neo được quấn quanh thân bích, lực ma sát nghỉ giữa dây và bích neo sẽ chống lại sự trượt của dây. Sức mạnh của hiệu ứng này được thể hiện qua phương trình Capstan: Tload=Thold×e(μθ). Trong đó, lực kéo từ tàu (Tload) được cân bằng bởi một lực giữ nhỏ hơn nhiều (Thold) nhờ vào sự khuếch đại theo hàm mũ.
Sự khuếch đại này phụ thuộc vào hai yếu tố chính: hệ số ma sát (μ) giữa vật liệu dây và bích, và quan trọng hơn là tổng góc ôm (θ) của dây quấn quanh bích. Mỗi vòng quấn thêm sẽ làm tăng góc ôm, khuếch đại lực giữ lên theo cấp số nhân. Đây là lý do tại sao các kỹ thuật quấn dây nhiều vòng, như "hình số 8", lại cực kỳ hiệu quả, cho phép một lực giữ nhỏ của con người hoặc máy tời có thể cố định an toàn cả một con tàu khổng lồ.
Lưu ý an toàn khi sử dụng bích neo
-
Không đứng trong vùng dây mooring có thể quất khi căng đột ngột.
-
Luôn kiểm tra độ mòn, gỉ sét của bích neo và móc buộc.
-
Đảm bảo cấu trúc bích được kiểm định định kỳ theo tiêu chuẩn của đăng kiểm (như ABS, Lloyd’s, VR…).
Ngoài sản phẩm trên, Công Ty TNHH MTV Lương Sơn Bạc còn sản xuất nhiều loại bích neo tàu khác nhau, tùy thuộc vào yêu cầu của khách hàng.
- Bích Neo Tàu Biển được đúc bằng nhiều loại vật khác nhau như gang, thép, inox,... tùy vào từng loại tàu sẽ có vật liệu phù hợp.
- Bích Neo Tàu Biển có nhiều kích cỡ khác nhau tùy thuộc vào yêu cầu khách hàng như: 10T, 15T, 30T, 50T, 75T, 100T, 150T, 200T,...

>>>Có thể quan tâm: Quy Trình Lắp Đặt Nắp Hố Ga: 5 Lưu Ý Quan Trọng Bạn Không Thể Bỏ Qua
Các Dạng Loại Bích Neo Tàu Biển
1. Bích Neo Tàu Trụ Đơn
Bích neo tàu trụ đơn có một trụ đứng, thường có đầu tròn hoặc hình cầu, với thiết kế đơn giản, dễ sản xuất và bảo trì. Loại này thường được sử dụng cho các tàu nhỏ hoặc tàu chở hàng với tải trọng không lớn. Ưu điểm của nó là dễ dàng lắp đặt và tháo gỡ, cùng với chi phí sản xuất thấp. Tuy nhiên, bích neo trụ đơn có khả năng chịu tải không cao so với các loại bích neo khác và không phù hợp cho các tàu lớn hoặc trong điều kiện thời tiết xấu.

2. Bích Neo Tàu Biển Trụ Đôi
Bích neo tàu biển trụ đôi có hai trụ đứng song song, mỗi trụ thường có đầu tròn hoặc hình cầu, với thiết kế chắc chắn hơn so với bích neo trụ đơn. Loại này được sử dụng cho tàu cỡ vừa và lớn, đặc biệt là trong điều kiện cần neo giữ chặt hơn. Ưu điểm của nó là khả năng chịu tải tốt hơn so với trụ đơn, cung cấp độ ổn định cao hơn cho tàu. Tuy nhiên, chi phí sản xuất cao hơn và phức tạp hơn trong lắp đặt và bảo trì.

3. Bích Neo Tàu Chữ T
Bích neo tàu chữ T có hình dạng chữ T với một trụ đứng và một thanh ngang trên đỉnh, giúp tăng diện tích tiếp xúc với dây neo. Loại này được sử dụng rộng rãi trên các tàu cỡ vừa và lớn, thích hợp cho các vùng biển có dòng chảy mạnh và sóng lớn. Ưu điểm của nó là độ bám và khả năng giữ neo tốt, dễ dàng thao tác khi neo và gỡ neo. Tuy nhiên, chi phí sản xuất và bảo trì cao hơn và khó lắp đặt hơn so với các loại bích neo đơn giản khác.

4. Bích Neo Tàu 2 Nhánh
Bích neo tàu 2 nhánh gồm hai nhánh nằm ngang song song hoặc nghiêng về phía dưới từ một trụ trung tâm, tối ưu cho việc bám vào đáy biển hoặc nền đá. Loại này thường được sử dụng cho tàu chở hàng cỡ lớn hoặc tàu dầu, thích hợp cho các vùng biển có đáy biển không đều. Ưu điểm của nó là khả năng bám đáy biển rất tốt, cung cấp độ ổn định cao cho tàu trong mọi điều kiện thời tiết. Tuy nhiên, chi phí sản xuất cao và cần có kỹ thuật viên chuyên nghiệp để lắp đặt và bảo trì.

5. Bích Neo Tàu 4 Nhánh
Bích neo tàu 4 nhánh gồm bốn nhánh từ trụ trung tâm, có thể nằm ngang hoặc nghiêng về phía dưới, thiết kế tối đa hóa khả năng bám đáy biển. Loại này được sử dụng cho các tàu lớn nhất, bao gồm tàu chở dầu, tàu container và tàu chở hàng lớn, thích hợp cho các vùng biển có đáy biển phức tạp và điều kiện thời tiết khắc nghiệt. Ưu điểm của nó là khả năng chịu tải và bám đáy biển tốt nhất, cung cấp độ an toàn cao nhất cho tàu. Tuy nhiên, chi phí sản xuất và bảo trì rất cao và phức tạp trong lắp đặt, yêu cầu kỹ thuật cao.

Ưu Điểm Của Bích Neo Tàu Biển
Bích neo tàu biển mang lại nhiều ưu điểm vượt trội, giúp tăng hiệu quả và an toàn trong quá trình sử dụng:
- Độ bền cao: Nhờ vào chất liệu thép chất lượng cao và quy trình sản xuất tiên tiến, bích neo tàu biển có độ bền vượt trội.
- Khả năng chịu lực tốt: Thiết kế và chất liệu của bích neo giúp nó chịu được lực kéo lớn, đảm bảo an toàn cho tàu thuyền.
- Chống ăn mòn: Với lớp mạ kẽm và các biện pháp xử lý bề mặt, bích neo tàu biển có khả năng chống ăn mòn tốt, kéo dài tuổi thọ sản phẩm.
- Dễ dàng lắp đặt và sử dụng: Thiết kế của bích neo tàu biển cho phép dễ dàng lắp đặt và sử dụng, tiết kiệm thời gian và chi phí.
Ứng Dụng Của Bích Neo Tàu Biển
Bích neo tàu biển được sử dụng rộng rãi trong các cảng biển, bến tàu và các công trình hàng hải khác. Các ứng dụng chính bao gồm:
- Neo đậu tàu thuyền:
Một trong những ứng dụng chính của bích neo tàu biển là neo đậu tàu thuyền. Việc đảm bảo tàu thuyền được neo đậu an toàn và ổn định là rất quan trọng, đặc biệt là trong các điều kiện thời tiết xấu như bão, gió lớn và sóng mạnh. Khi tàu thuyền được neo đậu bằng bích neo, nó giúp giữ cho tàu thuyền không bị trôi dạt hoặc va đập vào các cấu trúc khác, giảm thiểu nguy cơ hư hỏng và tai nạn. Bích neo tàu biển thường được làm từ các vật liệu chịu lực cao như thép không gỉ, gang đúc hoặc hợp kim nhôm, đảm bảo độ bền và khả năng chống ăn mòn tốt.
- Công trình hàng hải:
Trong các công trình hàng hải như xây dựng cầu cảng, bến tàu, bích neo cũng đóng một vai trò quan trọng. Khi xây dựng cầu cảng, bến tàu, việc cố định các cấu kiện và thiết bị là rất quan trọng để đảm bảo an toàn và độ bền của công trình. Bích neo được sử dụng để giữ các cấu kiện này cố định, chịu được tải trọng lớn từ tàu thuyền và các thiết bị khác. Ngoài ra, bích neo còn giúp duy trì sự ổn định của công trình trong quá trình sử dụng, đặc biệt là trong các điều kiện thời tiết khắc nghiệt.
- Bảo dưỡng và sửa chữa tàu:
Quá trình bảo dưỡng và sửa chữa tàu thuyền cũng cần đến bích neo. Khi tàu thuyền cần bảo dưỡng hoặc sửa chữa, việc cố định tàu một cách an toàn là rất quan trọng để đảm bảo an toàn cho người lao động cũng như cho tàu thuyền. Bích neo giúp giữ cho tàu thuyền không bị di chuyển hoặc trôi dạt trong quá trình bảo dưỡng, từ đó giảm thiểu nguy cơ tai nạn và hư hỏng. Việc sử dụng bích neo trong quá trình bảo dưỡng và sửa chữa tàu thuyền không chỉ giúp tăng hiệu quả công việc mà còn giúp tiết kiệm thời gian và chi phí.
>>>Có thể quan tâm: Ghi Bảo Vệ Gốc Cây: Giải Pháp Hiệu Quả Bảo Vệ Cây Xanh
Kết Luận
Bích neo tàu biển là một sản phẩm không thể thiếu trong ngành hàng hải, với các ưu điểm vượt trội về độ bền, khả năng chịu lực và chống ăn mòn. Việc hiểu rõ các thông số kỹ thuật, chất liệu, ứng dụng và ưu điểm của bích neo tàu biển sẽ giúp bạn lựa chọn và sử dụng sản phẩm một cách hiệu quả nhất.
Hãy liên hệ ngay với chúng tôi để được tư vấn chi tiết và hỗ trợ mua hàng. Chúng tôi cam kết cung cấp các sản phẩm bích neo tàu biển chất lượng cao, đáp ứng mọi nhu cầu của bạn.